产品分类


联系我们

    青岛美邸机械科技有限公司

    座   机:086-0532-80962360

    地   址:山东省青岛市城阳区流亭街道李家女姑社区居委会北200米

产品详情
当前位置:首页 > 产品详情

特殊订制

时间:2017-04-29 14:11:06

  屋顶倾角有3/12和6/12可供选择。也根据当地风载和雪载,经过结构设计师的计算,选用其他更为合适的角度。

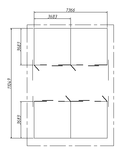
    我们主要提供由3683 mm x 3683 mm的单间组成的马厩,间数可根据场地情况及客户的喜好自由选择,同时也提供3683 mm x 3683 mm,3048 mm x 3048 mm,单间尺寸供客户选取,以便更加合理的利用场地。

    以下以2开间马厩为例,单间尺寸及间数均可变更。

    我们的檐头高为2438 mm,可根据客户的要求及实际情况进行调整。

    屋顶板采用840板型,厚度为0.476mm,颜色为绯红,白,蓝可选。

    马厩主体钢材选用镀锌钢材,镀锌层厚度为275g/㎡,能有效防止生锈。而采用热镀锌板制作的材料比黑管后期热镀锌处理的表面更平整、光洁。同时,根据客户对马厩颜色的需求,我们也可以进行喷粉处理。

    由于不需要另外施工建造房屋,产品整体性更好,并极大的减少施工时间。

    依照您的要求利用模块化设计制造出一栋独属于您的私人马厩。

    Build a better barn!




友情链接/ LINKS